Tel: 0532 177 99 20 | E-Posta: info@alsancakprefabrik.com.tr

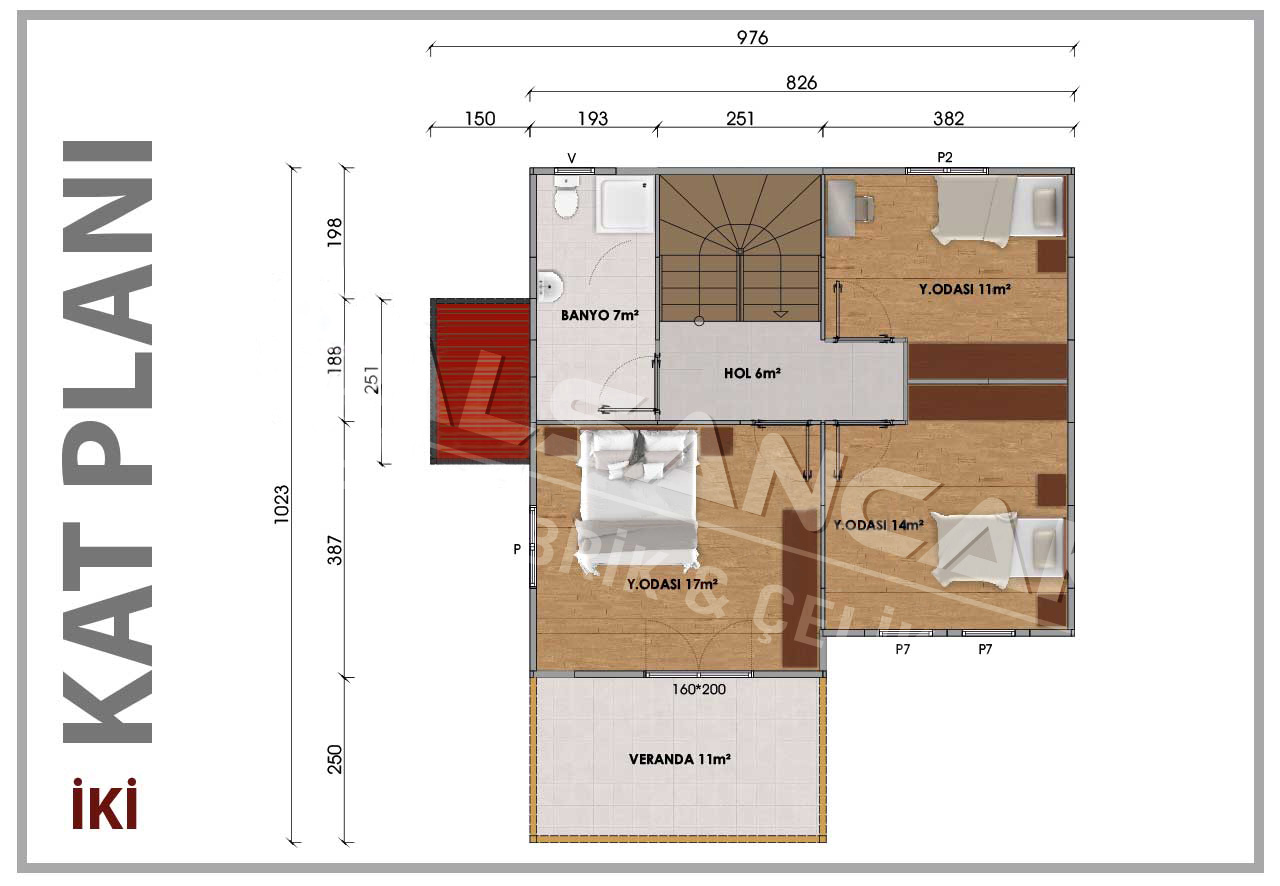
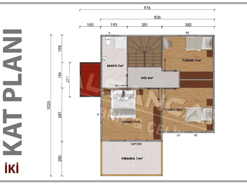
149M² Dublex Çelik Ev

149M² Dublex Çelik Ev

Prefabrik ev, modern tasarımı, yüksek kaliteli malzemeleri ve pratik yapısıyla sizlere konforlu bir yaşam sunmak için hazır. Gelişmiş inşaat teknikleri ile üretilmiş bu evler, hızlı montaj imkanı ile zamandan tasarruf sağlar. Her ayrıntısı titizlikle düşünülmüş olan prefabrik evler, estetik görünümleriyle de dikkat çekerken, iç mekanlarda geniş yaşam alanları sunar.

  • Metre Kare 149 m2
  • Oda Sayısı 2+1, 3+1
  • Banyolar2
  • Yapı TipiÇelik Villa
  • Kat Sayısı2
  • Dış Duvar Kalınlığı12 cm
  • İç Duvar Kalınlığı12 cm
  • Duvar Yüksekliği280 cm
  • Duvar Panel SistemiÇelik Konstrüksiyon
  • Çatı KaplamasıBoyalı Sandvich Panel
  • Çatı İzelasyonu10 cm Mineral Yün
  • Dış KapıÇelik Kapı
  • İç KapıMembran Kapı
  • PencerelerÇift Cam Isı Cam PVC ( İstenilen Renk )
  • Elektrik TesisatıSıva Altı
  • Sıhhi TesisatSıva Altı
Metre Kare 149 m2
Oda Sayısı 2+1, 3+1
Banyolar 2
Yapı Tipi Çelik Villa
Kat Sayısı 2
Dış Duvar Kalınlığı 12 cm
İç Duvar Kalınlığı 12 cm
Duvar Yüksekliği 280 cm
Duvar Panel Sistemi Çelik Konstrüksiyon
Çatı Kaplaması Boyalı Sandvich Panel
Çatı İzelasyonu 10 cm Mineral Yün
Dış Kapı Çelik Kapı
İç Kapı Membran Kapı
Pencereler Çift Cam Isı Cam PVC ( İstenilen Renk )
Elektrik Tesisatı Sıva Altı
Sıhhi Tesisat Sıva Altı